Horstig, R. von.
1892.
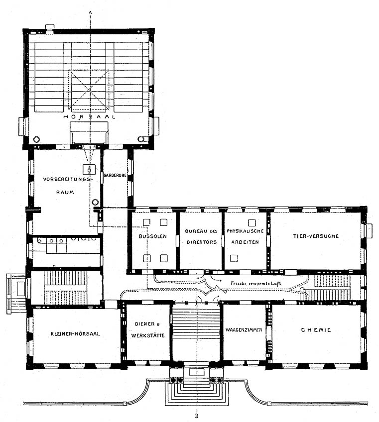
Die Universität und ihre Anstalten: Das physiologische Institut.
(p. p0257, fig. 20).
In: Würzburg, Insbesondere seine Einrichtungen für Gesundheitspflege und Unterricht: Fest-Schrift gewidmet der 18. Versammlung des Deutschen Vereins für öffentliche Gesundheitspflege, edited by K. B. Lehmann and Julius Röder, 256-262. Würzburg.
Book Section