The Virtual Laboratory - Resources on Experimental Life Sciences
  • Upload
Log in Sign up

Physiological Institute, University of Strasbourg

Founding date:
* November 1, 1885
Location
Strasbourg (France)

VL Images

Das Physiologische Institut in Strassburg

Das Physiologische Institut in Strassburg

Das Physiologische Institut in Strassburg. Erster Stock

Das Physiologische Institut in Strassburg. Erster Stock

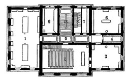
Das Physiologische Institut in Strassburg. Erdgeschoss

Das Physiologische Institut in Strassburg. Erdgeschoss

Source

Goltz, Friedrich. 1885. Das Physiologische Institut. In: Festschrift für die 58. Versammlung Deutscher Naturforscher und Ärzte: Die naturwissenschaftlichen und medicinischen Institute der Universität und die naturhistorischen Sammlungen der Stadt Strassburg, 71-75. Strassburg: J. H. Ed. Heitz. Book Section

Related records

Physiological Institute, University of Strasbourg. Strasbourg (France).

VL People

...

Friedrich Leopold Goltz

head 1834 - 1902

VL Sites

physiology / psychology
Permalink (old)
http://vlp.uni-regensburg.de/references?id=sit96
Keywords
Laboratory
physiology (exp., animal, comp.)
physics
chemistry
operation (unspecified)
animal observation
dissecting
Technical instruments
Galvanometer
heliostate
Gramme's machine (1877)

Export

  • Dublin Core
  • JSON

Language:

© Universitätsbibliothek Regensburg | Imprint | Privacy policy | Contact | Icons by Font Awesome and Icons8 | Powered by Invenio & Zenodo