The Virtual Laboratory - Resources on Experimental Life Sciences
  • Upload
Log in Sign up

Physiological Institute, University of Würzburg

Founding date:
* Autumn 1887
Location
Würzburg (Germany)

VL Images

Physiologisches Institut Würzburg

Physiologisches Institut Würzburg

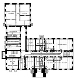
Physiologisches Institut Würzburg. Grundriss des Hochparterres

Physiologisches Institut Würzburg. Grundriss des Hochparterres

Physiologisches Institut. Schnitt nach A-B

Physiologisches Institut. Schnitt nach A-B

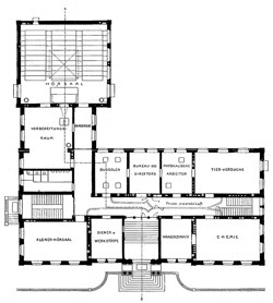
Physiologisches Institut. Grundriss des Untergeschosses

Physiologisches Institut. Grundriss des Untergeschosses

Source

Horstig, R. von. 1892. Die Universität und ihre Anstalten: Das physiologische Institut. In: Würzburg, Insbesondere seine Einrichtungen für Gesundheitspflege und Unterricht: Fest-Schrift gewidmet der 18. Versammlung des Deutschen Vereins für öffentliche Gesundheitspflege, edited by K. B. Lehmann and Julius Röder, 256-262. Würzburg. Book Section

VL People

...

Adolf Eugen Fick

head 1829 - 1901

VL Sites

physiology / psychology
Permalink (old)
http://vlp.uni-regensburg.de/references?id=sit101
Keywords
Laboratory
physical physiology
physiological chemistry
physiology (exp., animal, comp.)
muscle and nerve physiology
gas analysis
Technical instruments
Galvanometer
skiopticon
Centrifuges
rain water pump
heliostate
water motor

Export

  • Dublin Core
  • JSON

Language:

© Universitätsbibliothek Regensburg | Imprint | Privacy policy | Contact | Icons by Font Awesome and Icons8 | Powered by Invenio & Zenodo